Żaluzje przedokienne
Skrzynka podtynkowa purenitowa
Skrzynka termoizolacyjna do żaluzji zewnętrznych jest do detali opracowanym elementem budynku, który przynosi szereg użytecznych efektów. Wynikają ode przede wszystkim z właściwości materiału PURENIT, z którego te skrzynki są wykonane.
Plusy
Zalety i korzyści
- wysoka izolacyjność cieplna
Purenit ma bardzo niską przewodność cieplną, co wyraźnie ogranicza mostki termiczne w okolicy nadproża nad oknem lub przestrzenią montażową. - odporność na wilgoć i gnicie
Materiał jest stabilny również w wilgotnym środowisku – nienasiąkliwy, nie atakuje go pleśń, co wydłuża jego żywotność. - wysoka wytrzymałość i stabilność
Kasety purenitowe są dostatecznie mocne do umocowania systemów żaluzjowych i roletowych, oraz innych komponentów, przy tym zachowują stałość wymiarową. - łatwa obrabialność
Materiał można łatwo ciąć, frezować lub wiercić, co ułatwia montaż na budowie i dopasowanie według potrzeby. - niepalność (B2 – według DIN 4102)
Purenit jest klasyfikowany jako materiał samogasnący, co zwiększa bezpieczeństwo pożarowe konstrukcji.
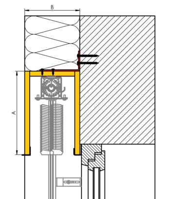
Limity wymiarów skrzynek

minimalna długość skrzynki D: 500 mm
maksymalna długość skrzynki D: 6000 mm
maksymalny wymiar strony A: 600 mm
maksymalny wymiar strony B: 300 mm
maksymalna głębokość skrzynki C: 600 mm
Warianty skrzynek
| ISOTRA PB | ISOTRA PB-IS | ISOTRA PB-L |
|---|---|---|
![]() |
![]() |
![]() |
Połączenie skrzynek proste i narożnikowe
- Kasety o długości większej niż 3500 mm są zestawiane z kilku sztuk przez łączenie poszczególnych części kaset.
Wymiary okładziny
- Wykładzina izolacyjna Purenite PIO
- Wykładzina styropianowa SIO
- Wykładzina Purenite PUR
Wymiary graniczne dla okładziny
| Wymiar A | Wymiar B | Wymiar C | |||
|---|---|---|---|---|---|
| Min. | Maks. | Min. | Maks. | Min. | Max. |
| 120 mm | 3200 mm | 150 mm | 300 mm | 60 mm | 200 mm |
Grubość izolacji PIR (dla typu PBI-IS)
| Grubość mm | 20 | 30 | 40 | 50 | 60 |
|---|---|---|---|---|---|
| Odporność termiczna RD [(m2.K)/W] | 0,20 | 0,35 | 0,45 | 0,55 | 0,70 |
| Współczynnik przenikania ciepła RD [(m2.K)/W] | 2,94 | 2,04 | 1,69 | 1,45 | 1,19 |
| Odporność na dyfuzję Sd [m] | 0,16 | 0,24 | 0,32 | 0,40 | 0,48 |
Zapytaj nas
Zainteresował Cię produkt?
Chętnie odpowiemy na Twoje pytania, wystarczy wypełnić formularzu a my najpóźniej do 3 dni roboczych odpowiemy.
Galeria produktów


